︎
Elena Cerizza Studio
Architecture
Limited
Custom
Press
Info
Elena Cerizza Studio
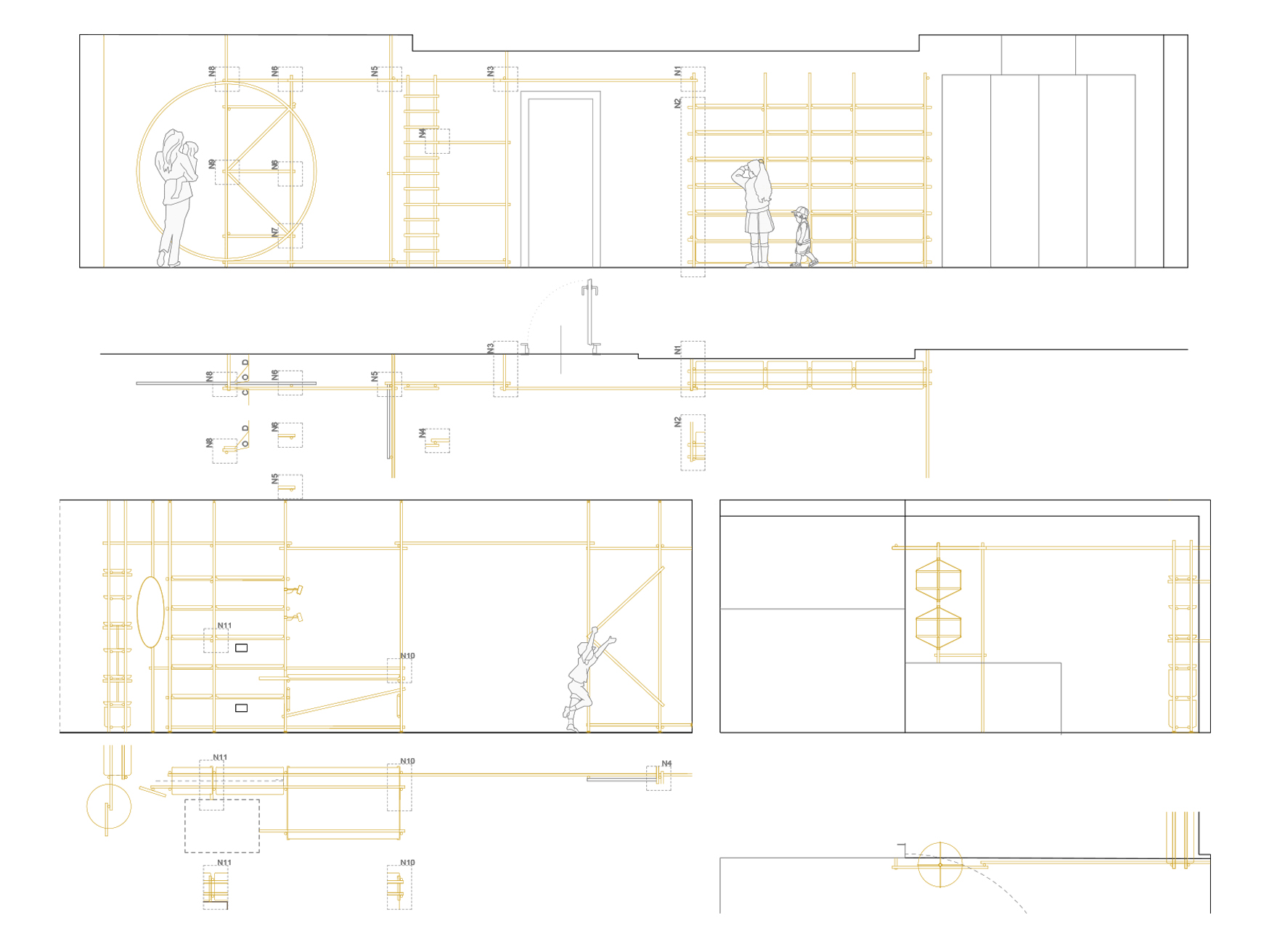
119.LUNA
Milano, 2016
Team: Elena Cerizza, Caterina Pilar Palumbo
Foto:
Caterina Pilar Palumbo
︎ Top