︎
Elena Cerizza Studio
Architecture
Limited
Custom
Press
Info
Elena Cerizza Studio
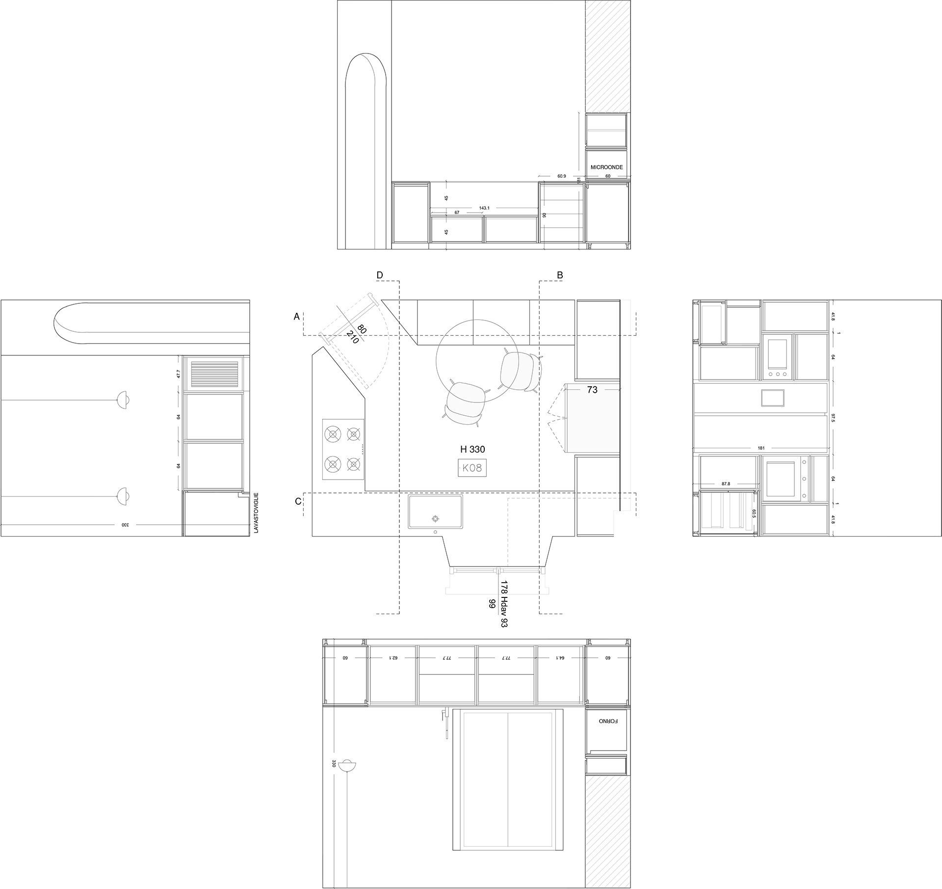
196.SCURETTO
Milano, 2020
Team: Elena Cerizza, Marta Bertani, Carmen Federica Napolitano
Foto:
Matteo Girola
︎ Top