︎
Elena Cerizza Studio
Architecture
Limited
Custom
Press
Info
Elena Cerizza Studio
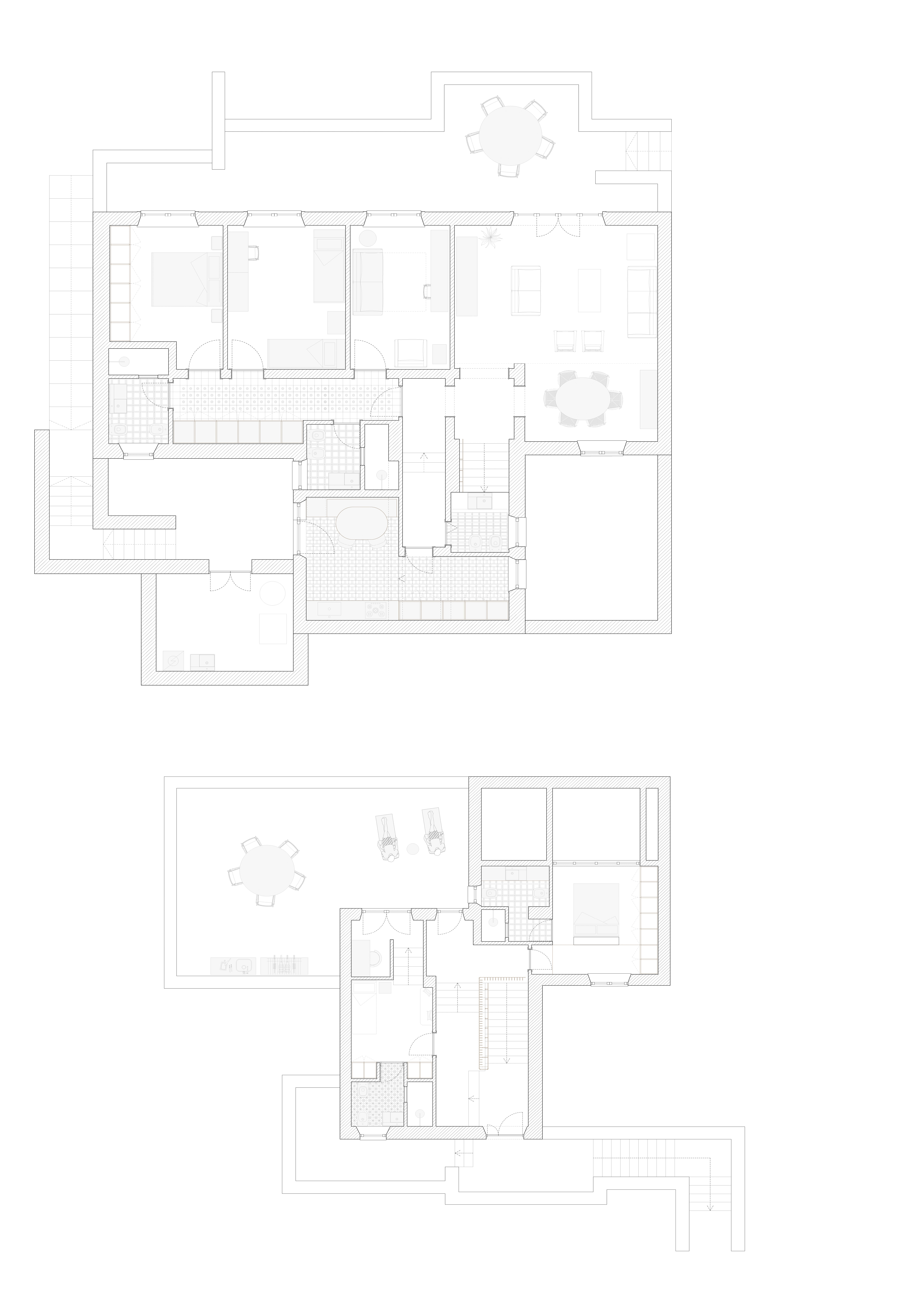
CASA AL MARE
Punta Ala, GR - Upcoming
Author: Elena Cerizza
Team: Carmen Federica Napolitano, Edoardo Caizzi, Marco Pederzini, Giovanna Rapisarda
︎ Top